Майбутнє має адресу
86000 у.о. |
|||
|---|---|---|---|
| Подивитися детальну інформацію про ЖК Простір на Донського | |||
| ID | 147398 | ||
| Розташування | Донського Дмитра вул., Київський | ||
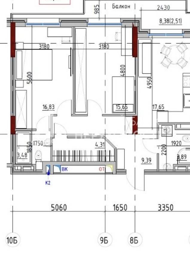
| Загальна, кв.м. | 72.00 | ||
| Жила/Кухня, кв.м. | 40.00/17.00 | ||
| Поверх | 4 /8 | ||
| Висота стелі, м. | 2.70 | ||
| Стан нерухомості | від будівельників | ||
| Опалення | дахова котельня | ||
У продажу 2 кімнатна квартира правильного планування в 5 секції в житловому комплексі "Простір на Донського". ЖК повністю зданий.
У квартирі 2 спальні, кухня-студія, гардероб, 2 санвузли, великий балкон на фасаді квартири з виходом з кожної кімнати, чудовий вигляд у двір.
У квартирі виконано частковий ремонт від будівельників.
Будинок зданий, але документи на право власності ще не отримані, до моменту отримання документів можна оформити продаж із переуступки.
Отримати консультацію