a

Майбутнє має адресу

ЖК Простір на Донського

від 1150 у.о./кв.м.

Перший Банк Нерухомості є офіційним партнером будівельної компанії. Об'єкти продаються без будь-якої комісії.

Є здані секції

Строк здачі

1 кв. 2022 р.

Варіантів квартир у цьому комплексі: 4. → Подивитись усі
Район Київський
Забудовник Простір
Поверховість 7 пов.
Будинок зданий
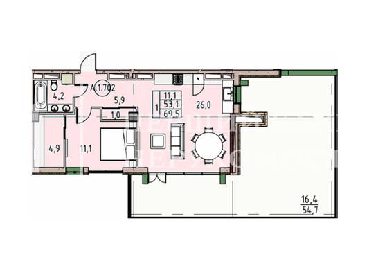
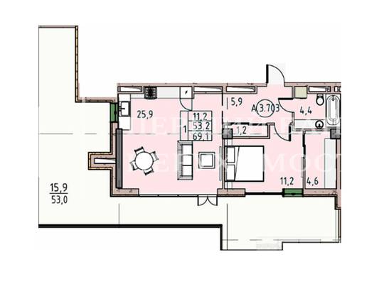
1 кімнатні від 38 до 56 м2
2 кімнатні від 56 до 90 м2
Замовити прорахунок вартості квартири чи комерції

Опис об’єкту

ЖК «Простір на Донського» – це абсолютно новий, унікальний проект, який складається з клубних будинків на вулиці Дмитра Донського. Проект є унікальним завдяки своїй концепції. На закритій території, що охороняється, будуть висаджені справжні сади, для затишного та комфортного відпочинку у дворі зі своїми близькими та друзями. Крім цього, у внутрішньому дворі буде обладнано сучасний дитячий майданчик. У цьому житловому комплексі реалізовано ідею «Двір без машин» .

Житловий комплекс « Простір на Донського » складається з будинків різної поверховості (5-8 поверхів). В основі будівель монолітно-каркасна конструкція, яка забезпечує довговічність та надійність будинків. Утеплення здійснюється за допомогою базальтових плит (товщина 80 мм). Загальна товщина стінок – 400 мм.

У кожній парадній виконано високоякісний ремонт та встановлені сучасні ліфти (пасажирські та вантажні). Місткий підземний паркінг.

Є можливість придбати квартири як у стані «від будівельників», так і з ремонтом. На момент видачі ключів у кожній квартирі встановлюються якісні металопластикові вікна Rehau (п'ять камерний профіль) та сучасні броньовані двері.

Інфраструктура

Простір на Донського будується на однойменній вулиці поблизу 7 станції Великого Фонтану та має зручну транспортну розв'язку. Відстань до найближчої автобусної зупинки становить лише 70 м.

Поблизу знаходиться великий ТРЦ «Сіті центр».

Найважливішим із пріоритетів є спрямованість на сімей з дітьми, оскільки на території буде знаходитись ігровий майданчик, дитячий садок, а також спортзал, центр розвитку дітей, освітній центр, арт-галерея, аптека, хімчистка, продовольчий магазин, SPA-салон.

(067) 199-97-86

Отримати консультацію

Подивитися квартири в цьому комплексі

Подивитись усі

Акції та спеціальні пропозиції на усі житлові комплекси

Подивитись усі акційні пропозиції
(067) 199-97-86