a

У мечты есть адрес

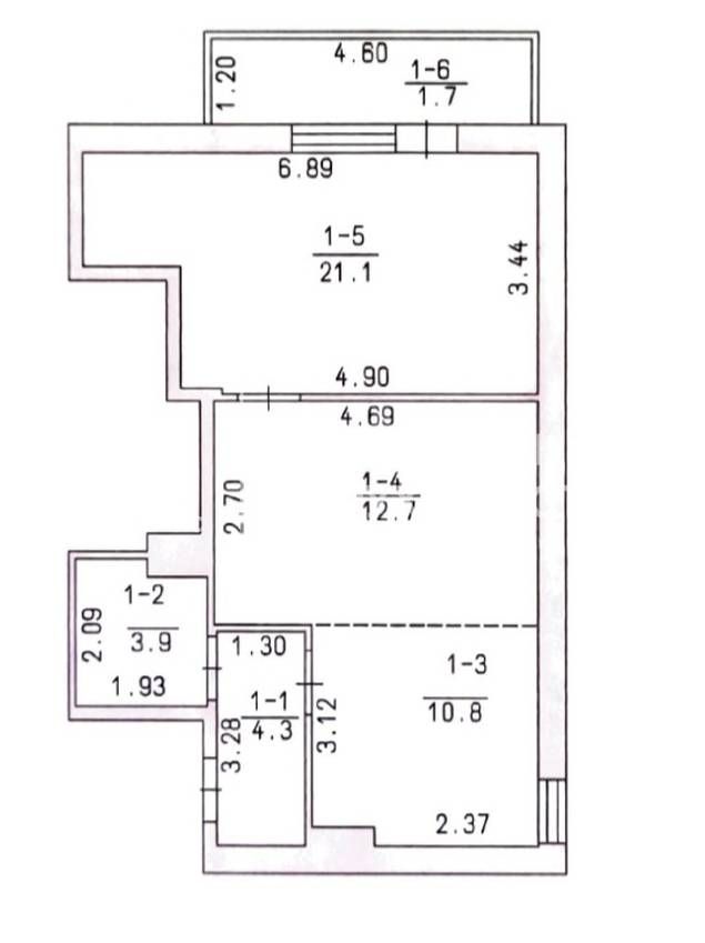
2-комнатная квартира, 55.00 кв.м.

33000 у.е.

ID 155576
Расположение Институтская ул., Овидиопольский
Общая, кв.м. 55.00
Жилая/Кухня, кв.м. 33.80/10.80
Этаж 5 /5
Высота потолков, м. 5.00
Состояние недвижимости от строителей
Отопление ОАГВ

Продам мансардну квартиру в ЖК Лондон, ж/м Червоний Хутір. Розташована на 5-му поверсі, загальна площа 55 кв.м., з високою стелею 5м і додатковою можливістю зробити антресоль і збільшити загальну площину на 15кв.м, є газ. Двір закритий. Будинок поділений на 3 секції, центральна- 6 поверхів, бічні- 5 поверхів. Готовий дизайн проект крутих архітекторів boom project, поділюсь при бажанні. Квартира від забудовника, стіни можна ламати.  З балкону боковий вид шматочка моря. Дзвоніть для перегляду!

Автономия

Автономное отопление

Безпасность

Закрытая территория

Охраняемая территория

(067) 476-52-14

Консультация

(067) 476-52-14