У мечты есть адрес
90000 у.е. |
|||
|---|---|---|---|
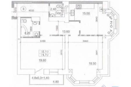
| Посмотреть подробную информацию о ЖК Виндзор | |||
| ID | 155223 | ||
| Расположение | Б. Литвака ул., Приморский | ||
| Общая, кв.м. | 74.70 | ||
| Жилая/Кухня, кв.м. | 38.10/15.00 | ||
| Этаж | 5 /10 | ||
| Высота потолков, м. | 3.00 | ||
| Состояние недвижимости | от строителей | ||
| Отопление | ОАГВ | ||
2-комнатная квартира в ЖК «ВИНДЗОР» — премиум-класс в центре города!
Продаётся квартира площадью 74,7 м² на 5 этаже 10-этажного дома премиум-сегмента. Потолки — 3 метра, состояние — от строителей.
Преимущества:
Дом из красного кирпича (толщина стен 70 см)
Индивидуальный газовый котёл
Круглосуточная охрана, видеонаблюдение
Лифт SHINDLER (Австрия)
Две линии электропитания, резерв воды
Всего 4 квартиры на этаже
Тихий исторический центр, до Дерибасовской — 15 минут.
Звоните для просмотра!
Консультация