a

У мечты есть адрес

1-комнатная квартира, 54.00 кв.м.

39500 у.е.

Посмотреть подробную информацию о ЖК Поющий Фонтан
ID 153860
Расположение Фонтанская дорога ул., Киевский
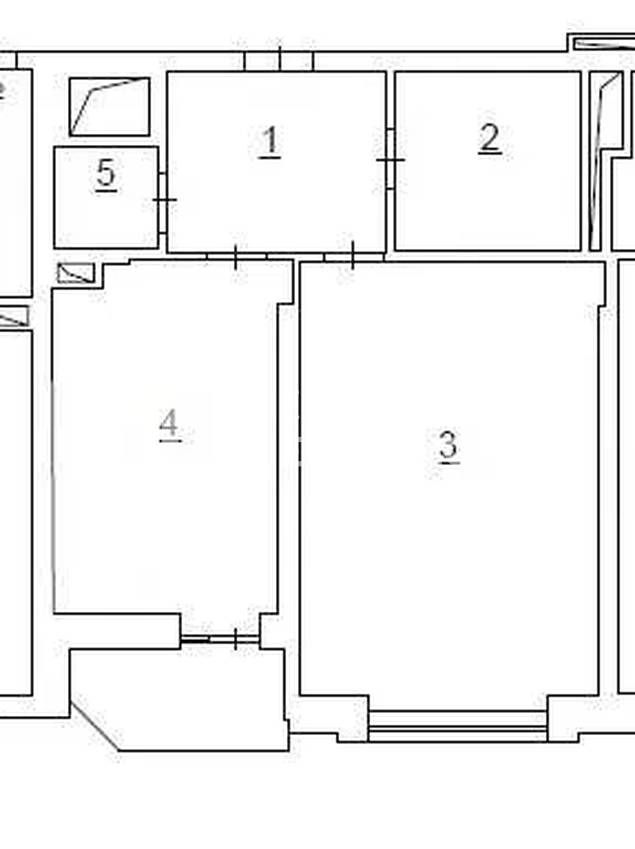
Общая, кв.м. 54.00
Жилая/Кухня, кв.м. 20.00/15.00
Этаж 4 /17
Высота потолков, м. 3.00
Состояние недвижимости от строителей
Отопление крышная котельная

Предлагается к продаже квартира в самом современном районе Одессы в новом доме.

Ликвидный вариант для инвестиций, а также проживания.
Дом на этапе ввода в эксплуатацию. 

Квартира удачно спланирована в отдельную спальню и просторную кухню с лоджией, санузел и туалет. Состояние от строителей позволит новым владельцам воплотить в дизайне самые смелые идеи.
Перепланируется в 2-х комнатную квартиру.

Тихий и спокойный район Большого Фонтана, имеющий прямой выход к морю через Каманина, или через парк Юность к набережной. Если захочется провести время на природе с красивой панорамой Черного моря – парк Юность – идеальное место. Пройтись к нему по улице Литературной займет у Вас всего 7 минут. До пляжей Аркадии 10 минут пешком.
Рядом с домом есть уютный прогулочный сквер.

Школа в 200 метрах от дома. Магазины, аптеки, парикмахерская, фитнес-центр, поликлиника – все в пешей доступности.

Добраться в другие спальные районы города, а также в центр, позволяют трамвайные маршруты и множество автобусных маршрутов.

Жилой комплекс оборудован паркингом, надежным фундаментом, внутренними стенами и перегородками из газобетона. Фасад имеет дополнительное утепление.

В квартире выполнена качественная чистовая стяжка полов, установлены металлопластиковые окна (Германия). В доме оборудованы скоростные лифты.
 

Автономия

Автономное отопление

Бомбоубежище

Безпасность

Закрытая территория

Охраняемая территория

(067) 569-46-14

Консультация

(067) 569-46-14