У мечты есть адрес
99000 у.е. |
|||
|---|---|---|---|
| ID | 153024 | ||
| Расположение | Глушко Академика просп. (Князя Ярослава Мудрого пр.), Киевский | ||
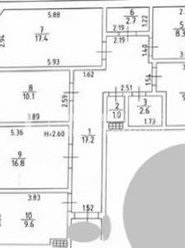
| Общая, кв.м. | 99.00 | ||
| Жилая/Кухня, кв.м. | 61.90/16.80 | ||
| Этаж | 2 /9 | ||
| Высота потолков, м. | 2.90 | ||
| Состояние недвижимости | с ремонтом | ||
| Отопление | ОАГВ | ||
Продаётся просторная 5-комнатная квартира в отличном районе, общей площадью 99 м² с удобной планировкой. В ней пять изолированных комнат, просторная кухня и раздельный санузел. Благодаря автономному отоплению с двухконтурным котлом, вы сами регулируете комфортный микроклимат в любое время года.
Квартира расположена в развитом районе, где есть всё для комфортной жизни: школы, детские сады, рынок, магазины, удобная транспортная развязка и зелёные зоны для отдыха.
Этот вариант идеально подойдёт для семьи, ценящей пространство. Квартира готова к заселению – звоните и приходите на просмотр!
Консультация