У мечты есть адрес
26500 у.е. |
|||
|---|---|---|---|
| Посмотреть подробную информацию о ЖК Urban Market | |||
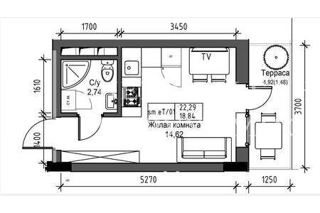
| ID | 152952 | ||
| Расположение | Спрейса ул., Овидиопольский | ||
| Общая, кв.м. | 22.29 | ||
| Жилая/Кухня, кв.м. | 14.62/14.62 | ||
| Этаж | 5 /10 | ||
| Высота потолков, м. | 3.00 | ||
| Состояние недвижимости | с ремонтом | ||
| Отопление | крышная котельная | ||
В продаже студия с терассой, на среднем этаже . Срок сдачи дома 2кв. 2026г.1я очередь сдачи, с ремонтом и терассой!
Urban market — это пространство, которое объединяет комфортное жилье, зеленые зоны и социально значимые объекты. К таким относятся школа, детский сад, торговый комплекс с фудкортом и продуктовые магазины, а также деловой центр и фитнес-клубы, детские площадки и атракционы, зоомагазин, школа, мебельный магазин. Большая парковая зона.
Всего за 18 минут на авто можно добраться до исторического центра, но однозначно Urban market — это место, в котором хочется строить свое будущее! Есть подземный паркинг доп. оплата .
Консультация