У мечты есть адрес
150000 у.е. |
|||
|---|---|---|---|
| ID | 151723 | ||
| Расположение | Зоопарковая ул., Приморский | ||
| Общая, кв.м. | 150.00 | ||
| Жилая/Кухня, кв.м. | 80.00/19.00 | ||
| Этаж | 10 /11 | ||
| Высота потолков, м. | 3.00 | ||
| Состояние недвижимости | от строителей | ||
| Отопление | крышная котельная | ||
Продается просторная двухуровневая квартира в ЖК "Победа" по адресу Зоопарковая, в одном из самых уютных и комфортных районов города.
Основные характеристики:
- Общая площадь: 150 м²
- Этаж: 10 и 11 (всего 11 этажей)
- Количество комнат: 4
- Санузлы: 4
- Лоджии: 4
Особенности квартиры:
- Дом из экологически чистого красного кирпича.
- Высокие потолки (3 м) создают ощущение простора.
- Панорамные виды на Академгородок и Парк Победы.
- Черновой ремонт с готовыми инженерными сетями и счетчиками.
- Отдельное отопление — двухконтурный газовый котел.
- Качественная сантехника от компании Grohe.
- Лоджии утеплены дополнительным слоем кирпича.
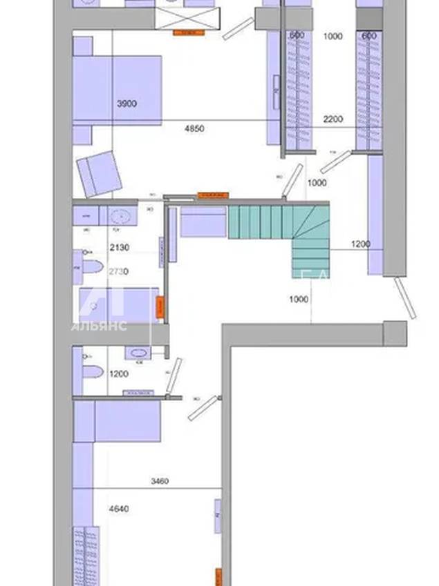
Планировка:
1 уровень:
- Кухня (19 м²) совмещена с гостиной (23 м²) + лоджия + гостевой санузел.
- Комната (23 м²) с собственным санузлом.
- Кладовка.
2 уровень:
- Две комнаты (по 15.6 м² каждая) с собственными санузлами и лоджиями.
- Просторная гардеробная (12 м²).
Дополнительно:
- Закрытая и благоустроенная территория, детская площадка, подземный паркинг.
- Проект лестницы между уровнями в подарок.
Цена за квадратный метр — 750$, общая стоимость — 112 500$.
Квартира идеально подойдет для тех, кто ценит комфорт, уют и возможность создать интерьер своей мечты в просторном жилом пространстве.
Консультация