a

У мечты есть адрес

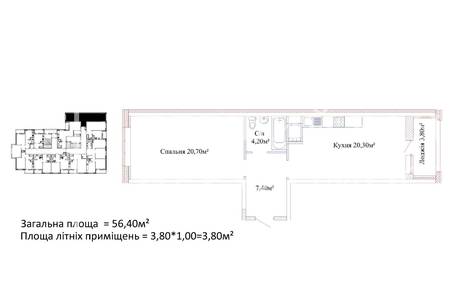
1-комнатная квартира, 56.40 кв.м.

53000 у.е.

Посмотреть подробную информацию о ЖК Sky City
ID 151447
Расположение Варненская ул., Киевский
Общая, кв.м. 56.40
Жилая/Кухня, кв.м. 20.70/20.30
Этаж 22 /24
Высота потолков, м. 2.75
Состояние недвижимости от строителей
Отопление крышная котельная

У продажу 1 кімнатна простора квартира 56,4 м² у ЖК Скай Сіті! на Таїрова. Біля Сіті Центру!

Це  варіант 1 кімнатної квартири, який з легкістю можна трансформувати у 2 кімнатну.

23 поверх

56.4 м2

Чудовий вид на місто. У ЖК завжди працює генератор.

Оперативний показ!

Автономия

Генератор

Аварийное освещение

Автономное отопление

Бесперебойная работа лифтов

Бомбоубежище

Безпасность

Закрытая территория

Охраняемая территория

Видеонаблюдение

(067) 522-58-95

Консультация

(067) 522-58-95