a

У мечты есть адрес

2-комнатная квартира, 69.10 кв.м.

72300 у.е.

Посмотреть подробную информацию о Клубный дом Дом на Тульской
ID 150297
Расположение Тульская ул., Киевский
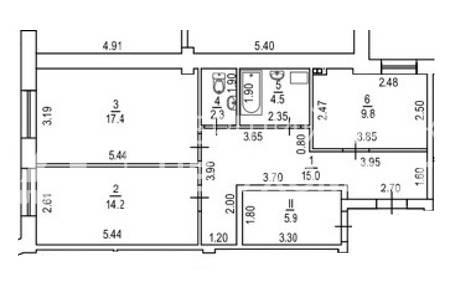
Общая, кв.м. 69.10
Жилая/Кухня, кв.м. 31.10/16.10
Этаж 4 /4
Высота потолков, м. 3.00
Состояние недвижимости от строителей
Отопление ОАГВ

еОселя

Новый малоэтажный дом на Таирова - р-н Вузовской Таврии.
ул. Тульская/ Вернадского в тишине частного сектора.

Закрытая территория, очень удобное расположение.
Развитая инфраструктура - рядом парк, школы, детские садики, рынок, остановки транспорта.

Всего 4 этажа, по 4 квартиры на каждом этаже, индивидуальное отопление, газ.
Котел АОГВ устанавливается самостоятельно покупателем.

Площадь - 69,1м 

Кухня-студия и 2 раздельные комнаты, раздельный с/у
Этаж - 4 из 4 - мансардный, потолки 4м.
Состояние квартиры - от строителей, установлены перестенки (можно сделать любую перепланировку), бронированные двери Саган.
Без стяжки пола.
Дополнительно есть возможность заказать 3 вида отделки/ ремонта от застройщика.

Дом введен в эксплуатацию - подходит под все госпрограммы ипотеки/кредитования - єОселя, постановы.

ЗВОНИТЕ И ЗАПИСЫВАЙТЕСЬ НА ПРОСМОТР!!!
 

Автономия

Генератор

Аварийное освещение

Автономное отопление

Безпасность

Видеонаблюдение

Домофон

(067) 476-52-14

Консультация

(067) 476-52-14