У мечты есть адрес
74000 у.е. |
|||
|---|---|---|---|
| Посмотреть подробную информацию о ЖК Пространство на Донского | |||
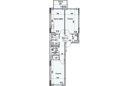
| ID | 149817 | ||
| Расположение | Донского Дмитрия ул., Киевский | ||
| Общая, кв.м. | 66.00 | ||
| Жилая/Кухня, кв.м. | 45.00/15.10 | ||
| Этаж | 5 /8 | ||
| Высота потолков, м. | 2.80 | ||
| Состояние недвижимости | от строителей | ||
| Отопление | крышная котельная | ||
Предлагается к продаже двухкомнатная квартира в ЖК "Пространство"!
Площадь квартиры составляет 66 квадратных метров. Это идеальный вариант для тех, кто хочет создать свой уютный уголок с нуля. Квартира находится в состоянии от застройщика, что дает возможность воплотить любые дизайнерские идеи. Расположенный в новом жилом комплексе, этот дом предлагает современные удобства и комфортное проживание. Звоните нам сейчас, чтобы узнать больше и организовать просмотр!
Консультация