a

У мечты есть адрес

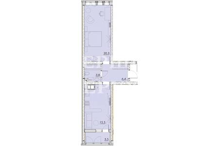
1-комнатная квартира, 49.60 кв.м.

42000 у.е.

Посмотреть подробную информацию о ЖК Прохоровский квартал
ID 148854
Расположение Прохоровская ул., Малиновский
Общая, кв.м. 49.60
Жилая/Кухня, кв.м. 20.30/15.50
Этаж 16 /16
Высота потолков, м. 3.00
Состояние недвижимости от строителей
Отопление крышная котельная

Центр города! 1-комнатная квартира в ЖК "Прохоровский квартал"  от застройщика Стикон.  Цена ниже чем у строительной компании!!!! Состояние от строителей. Квартира общей  площадью 49,6 м2  расположена на 16 этаже 16 этажного Жилого комплекса. 

Сдача секции 4 квартал 2025г. 

ЖК "Прохоровский квартал" расположен в историческом  центре города на  ул. Прохоровская. Окружает комплекс малоэтажная застройка без высоток, поэтому ничто не портит виды на старую Одессу. В пешей доступности от «Прохоровского квартала» 10 супермаркетов, рынок «Привоз», школьные и дошкольные учреждения. До Деребасовской 20 мин. пешком.  2 зеленых сквера рядом: Прохоровский и Михайловский. Звоните!       

 

Автономия

Автономное отопление

Бомбоубежище

Безпасность

Закрытая территория

Охраняемая территория

(067) 476-52-14

Консультация

(067) 476-52-14