У мечты есть адрес
63000 у.е. |
|||
|---|---|---|---|
| Посмотреть подробную информацию о ЖК Sky City | |||
| ID | 145069 | ||
| Расположение | Варненская ул., Малиновский | ||
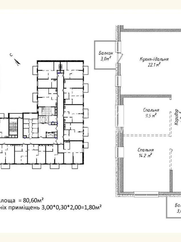
| Общая, кв.м. | 80.60 | ||
| Жилая/Кухня, кв.м. | 36.00/22.00 | ||
| Этаж | 6 /15 | ||
| Высота потолков, м. | 3.00 | ||
| Состояние недвижимости | от строителей | ||
| Отопление | крышная котельная | ||
В продаже трёхкомнатная квартира
Правильной планировки с двумя балконами, в состоянии от строителей
6/15 эт.
9 секция
площадь 80,6 кв.м
кухня 22 кв.м
Консультация