У мечты есть адрес
170000 у.е. |
|||
|---|---|---|---|
| ID | 1476 | ||
| Расположение | Урожайная ул., Малиновский | ||
| Общая, кв.м. | 140.00 | ||
| Жилая/Кухня, кв.м. | 63.90/37.60 | ||
| Этажей | 1 | ||
| Состояние недвижимости | от строителей | ||
| Отопление | немає | ||
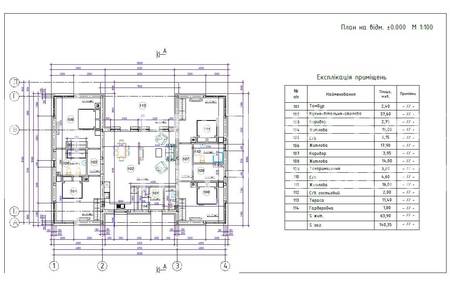
В продаже современный новый одноэтажный дом на Ленпоселке, ул.Урожайная
Площадь дома составляет 140 м2, расположен на участке 5.6 соток.
Большая кухня-столовая с выходом на террасу, четыре спальни, два санузла, гардеробная, кладовка. Внутри уже под чистовую отделку
Дом расположен в тихом районе с хорошей транспортной доступностью и развитой инфраструктурой: школы, магазины и парки в шаговой доступности.
Гос. акт на землю, дом не введён в эксплуатацию.
Звоните, оперативный показ
Консультация