a

У мечты есть адрес

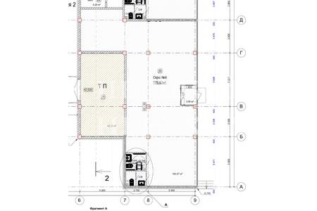
Коммерческое помещение 176.63 кв.м.

706520 у.е.

Посмотреть подробную информацию о ЖК Art House
ID 1426
Расположение ЖК Art House, Центральный
Общая, кв.м. 176.63
Состояние недвижимости от строителей
Этаж 1 /6
Высота потолков, м. 3.75

ЖК Art House

Это монументальное, малоэтажное здание с панорамными окнами в футуристическом архитектурном стиле. Внутренняя часть дома представлена атриумом, который покрыт стеклянной крышей. Там спроектированы места для отдыха с озеленением. Собственный подземный паркинг решит вопрос с хранением автомобиля, а коммерческие помещения на первом этаже будут полезны в рамках развития инфраструктуры района.

Особенности:

  • уникальная дизайнерская архитектура, которая хорошо вписывается в стиль центра города

  • удачное расположение в самом сердце города рядом с историческими и культурными памятниками, зеленой зоной, а также объектами бизнес инфраструктуры

  • закрытая для посторонних территория, видеонаблюдение общественных зон

  • в каждой секции предусмотрены колясочные и благоустроенные холлы

  • консьерж-сервис для удобства жильцов комплекса
     

В ПРОДАЖЕ КОММЕРЧЕСКОЕ ПОМЕЩЕНИЕ 

(067) 476-52-14

Консультация

(067) 476-52-14