У мечты есть адрес
85000 у.е. |
|||
|---|---|---|---|
| ID | 1342 | ||
| Расположение | Петрова Генерала ул. (Евгения Танцуры ул.), Малиновский | ||
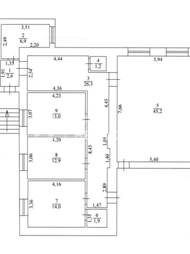
| Общая, кв.м. | 135.00 | ||
| Состояние недвижимости | с ремонтом | ||
| Этаж | 1 /9 | ||
| Высота потолков, м. | 2.80 | ||
Коммерческое помещение по выгодной цене на Черёмушках
Адрес: Генерала Петрова, 48-а
Идеально подходит для офиса или бизнеса
Характеристики:
• Площадь: 122,8 м² + 12 м² бонусом (общая площадь – 135 м²)
• 1-й этаж, окна выходят на фасад, вход со двора
• Выполнен ремонт, имеется офисная мебель
Спокойное и функциональное решение для вашего бизнеса.
Консультация