Майбутнє має адресу
81726 у.о. |
|||
|---|---|---|---|
| Подивитися детальну інформацію про ЖК 68 Перлина | |||
| ID | 5263 | ||
| Розташування | Краснова вул., Приморський | ||
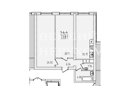
| Загальна, кв.м. | 77.10 | ||
| Жила/Кухня, кв.м. | 33.40/15.10 | ||
| Поверх | 4 /24 | ||
| Висота стелі, м. | 3.00 | ||
| Стан нерухомості | від будівельників | ||
| Опалення | дахова котельня | ||
ЖК 68 ПЕРЛИНА!
Житловий комплекс 68 Перлина має двір закритого типу, що охороняється, з консьєрж-сервісом в холах. Відмінна риса цього житлового простору - це масштабна зона з продуманим зонуванням. Тут можна знайти як сімейні зони з безпечними дитячими майданчиками, так і спортивні майданчики, бігові доріжки та навіть поле для гри у футбол.
У продажу, без комісії та переплат, 2-х кімнатна квартира з правильним раціональним плануванням.
Є можливість придбання даної квартири на виплат з мінімальним першим внеском.
Телефонуйте нам вже сьогодні!
Генератор
Аварійне освітлення
Автономне опалення
Безперебійна робота ліфтів
Бомбосховище
Закрита територія
Територія, що охороняється
Відеоспостереження
Домофон