Майбутнє має адресу
49150 у.о. |
|||
|---|---|---|---|
| Подивитися детальну інформацію про ЖК Удобний | |||
| ID | 4963 | ||
| Розташування | ЖК Зручний, Приморський | ||
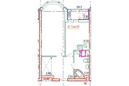
| Загальна, кв.м. | 49.15 | ||
| Жила/Кухня, кв.м. | 22.30/11.50 | ||
| Поверх | 3 /24 | ||
| Висота стелі, м. | 3.00 | ||
| Стан нерухомості | від будівельників | ||
| Опалення | дахова котельня | ||
ЖК Зручний
Ідеальне місце розташування в центрі міста, безпосередній близькості від залізничного вокзалу, за 15 хвилин ходьби від моря.
Вигідні умови розстрочення – розстрочка без подорожчання.
Стан від будівельників, броньовані вхідні двері, вільне планування, автономне опалення, можна замовити послугу з ремонту.
Закритий двір з цілодобовим відеоспостереженням, автоматичні системи безпеки. Підземний дворівневий паркінг.
Ідеальне розташування.
Поруч парки, школи, університети та ТРЦ.
ТЕЛЕФОНУЙТЕ І ЗАПИСУЙТЕСЯ НА ПЕРЕГЛЯД!!!
Генератор
Аварійне освітлення
Автономне опалення
Безперебійна робота ліфтів
Бомбосховище
Закрита територія
Територія, що охороняється
Відеоспостереження
Домофон