Майбутнє має адресу
79730 у.о. |
|||
|---|---|---|---|
| Подивитися детальну інформацію про ЖК Таїровські сади | |||
| ID | 4915 | ||
| Розташування | ЖМ Таїровські сади, Київський | ||
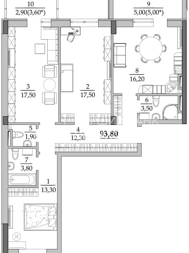
| Загальна, кв.м. | 93.80 | ||
| Жила/Кухня, кв.м. | 45.50/15.20 | ||
| Поверх | 4 /6 | ||
| Висота стелі, м. | 3.00 | ||
| Стан нерухомості | від будівельників | ||
| Опалення | дахова котельня | ||
ЖК ТАІРІВСЬКІ САДИ!
Один з кращих комплексів на Таїрова пропонує одну з трьох двокімнатних квартир, що залишилися в секції, термін здачі якої четвертий квартал наступного року.
Прибудинкова територія рясніє зеленими насадженнями, які з року в рік робитимуть територію комплексу ще красивіше.
Фішка даного об'єкта так само в тому, що одна з секцій будинку буде з функціональним дахом, на якому розташовуватиметься літній театр і зони для фітнесу та релаксу.
ТЕЛЕФОНУЙТЕ І ЗАПИСУЙТЕСЯ НА ПЕРЕГЛЯД!!!
Генератор
Аварійне освітлення
Автономне опалення
Безперебійна робота ліфтів
Бомбосховище
Закрита територія
Територія, що охороняється
Відеоспостереження
Домофон