a

Майбутнє має адресу

2-кімнатна квартира, 66.20 кв.м.

91356 у.о.

Подивитися детальну інформацію про ЖК 60 Перлина
ID 3778
Розташування Краснова вул., Приморський
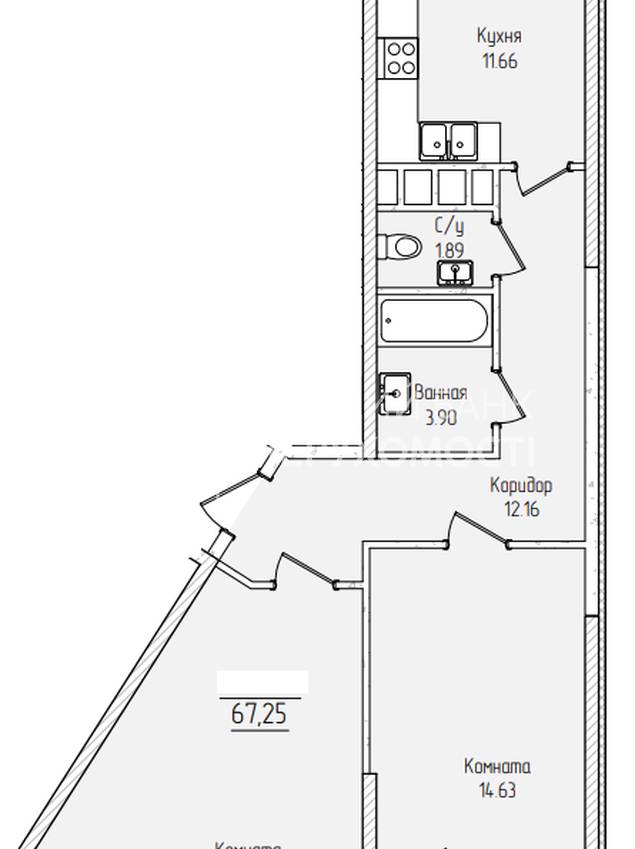
Загальна, кв.м. 66.20
Жила/Кухня, кв.м. 40.60/20.50
Поверх 23 /24
Висота стелі, м. 3.00
Стан нерухомості від будівельників
Опалення дахова котельня

ЖК 60 ПЕРЛИНА

Гармонія починається з упорядкованості. Саме ця концепція лежить в основі Kadorr City — кварталу на площі 8 гектарів уздовж Іподрому, що складається із 9 будинків. Житловий комплекс 60 Перлина – це 24-поверховий будинок із 3 секцій, який розташувався тут по вулиці Краснова.
Простора двокімнатна квартира від будівельників. Під Ваш авторський проект.
Мінімальний перший внесок.
Тривала розстрочка.
0% оформлення!

Телефонуйте та записуйтесь на перегляд!

Автономія

Генератор

Аварійне освітлення

Автономне опалення

Безперебійна робота ліфтів

Бомбосховище

Безпека

Закрита територія

Територія, що охороняється

Відеоспостереження

Домофон

(067) 476-52-14

Отримати консультацію

(067) 476-52-14