a

Майбутнє має адресу

3-кімнатна квартира, 232.50 кв.м.

744000 у.о.

Подивитися детальну інформацію про Клубний дім Biarritz
ID 3033
Розташування ЖК Biarritz, Приморський
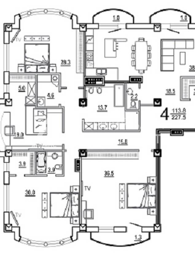
Загальна, кв.м. 232.50
Жила/Кухня, кв.м. 150.00/25.00
Поверх 4 /10
Висота стелі, м. 3.00
Стан нерухомості від будівельників
Опалення дахова котельня

ЖК Biarritz (Французький бул. 67)  

Це не типовий будинок, а архітектурний шедевр! Вибираючи архітектурний стиль, було враховано традиції, що історично склалися, забудови Французького бульвару та архітектурну спадщину європейських приморських курортів. У цьому проекті вдалося органічно поєднати класику та сучасність, монументальність та легкість. У результаті навіть у відомому елітному районі житловий комплекс «Біарріц» вирізняється своєю неповторністю. Його стиль можна охарактеризувати як еклектика із відтінком бароко, характерним для європейських міських палаців та резиденцій.
Квартира від будівельників. Простора, світла. Цілком готова до ваших дизайнерських ідей.
0% оформлення.
Ціна будівельної компанії.

Телефонуйте та записуйтесь на перегляд!!

Автономія

Генератор

Аварійне освітлення

Автономне опалення

Безперебійна робота ліфтів

Бомбосховище

Безперебійне водопостачання

Безпека

Закрита територія

Територія, що охороняється

Відеоспостереження

Домофон

Система "розумний дім"

(067) 476-52-14

Отримати консультацію

(067) 476-52-14