a

Майбутнє має адресу

2-кімнатна квартира, 130.00 кв.м.

180000 у.о.

ID 155923
Розташування Гагарінське плато (Аркадійське плато), Приморський
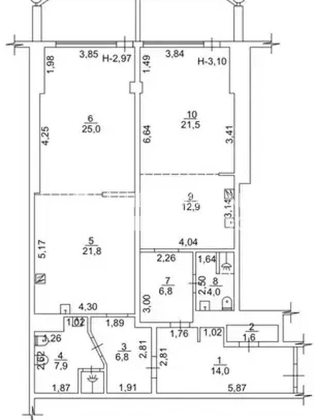
Загальна, кв.м. 130.00
Жила/Кухня, кв.м. 68.00/25.00
Поверх 2 /9
Висота стелі, м. 3.00
Стан нерухомості з ремонтом
Опалення дахова котельня

Апартаменти 130 м² з чудовим видом на море, розташовані в престижному районі Аркадії, Одеса.

Простір розділений на дві самостійні студії — ідеальне рішення для великої родини, друзів або як інвестиції під подобову/довгострокову оренду (кожна студія може працювати незалежно).

У кожній частині виконаний якісний ремонт, встановлені всі необхідні меблі та побутова техніка — заїдь і живи без додаткових вкладень. Є підсобні приміщення, комори та шафи для зручного зберігання.


Кожна студія має свою терасу по 8 м² з видом на Аркадію та море — південна сторона забезпечує максимум сонця, світла та гарні заходи прямо з тераси.

Локація одна з найкращих у місті: серце Аркадії, у кроковій доступності пляжі, Траса Здоров'я, парк Перемоги, ресторани, кафе, магазини та вся курортна інфраструктура. Район живий, але при цьому комфортний і зелений - тут завжди потрібні варіанти з видом на море.

Відмінний об'єкт для життя біля моря або стабільного доходу від оренди – такі апартаменти розбирають дуже швидко, особливо у сезон. Вартість 160,000 EUR

Готові до перегляду та оформлення угоди. Право власності понад 3 роки.

Автономія

Генератор

Аварійне освітлення

Автономне опалення

Безперебійна робота ліфтів

Бомбосховище

Безперебійне водопостачання

Безпека

Закрита територія

Територія, що охороняється

Відеоспостереження

(067) 522-58-95

Отримати консультацію

(067) 522-58-95