a

Майбутнє має адресу

4-кімнатна квартира, 89.00 кв.м.

47000 у.о.

ID 155806
Розташування Балківська вул., Малиновський
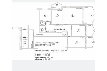
Загальна, кв.м. 89.00
Жила/Кухня, кв.м. 49.70/7.60
Поверх 14 /16
Висота стелі, м. 2.70
Стан нерухомості житлове
Опалення центральне

єОселя



Продається простора 4-х кімнатна квартира для сім'ї, де кожному буде своє місце.

Іноді шукаєш не просто квадратні метри, а простір, де зручно жити, рости, збиратися всією сім'єю за столом і при цьому мати можливість усамітнитися. Ця квартира саме така.

Вона розташована на Балківській у зручному та жвавому районі, де все поруч і все по-справжньому зручно.

До центру лише 10 хвилин на авто. Новий ринок та Дюківський парк за три хвилини. Під будинком «Таврія-В», поруч школи, садок, транспорт, банки, пошта. Все потрібне буквально навколо.

ПРО КВАРТИРУ

Квартира під ремонт і в цьому її цінність, що Ви не переплачуєте за чужий смак і можете спокійно створити простір, який відображатиме саме вашу родину. При цьому в неї можна заїхати і поступово робити оновлення.

- Світла, з приємним краєвидом на порт та місто,
- Просторі кімнати шкіра зі своєю лоджією,
- Містка кухня з газом,
- Роздільний санвузол,
- Комора та вбудовані шафи.

Планування дозволяє реалізувати сучасний формат: кухню-вітальню для сімейних вечорів та 3 окремі кімнати, а при бажанні ще й кабінет.

Характеристика приміщення:

висота стелі, м: 2, 7
стан квартири: житлове, але потребує ремонту
утеплення: утеплена ззовні.
Натяжна і побілка / штукатурка.
Підлога: лінолеум, плитка.
Внутрішнє оздоблення: шпалери, декоративна штукатурка.
Балкони були закриті склом ще в 90-ті, та зараз потребують заміни.

Опалення: централізоване.
Підігрів води: бойлер.
Помешкання: роздільна ванна кімната.
Обладнання обліку: лічильники на електрику та воду.
Коли немає світла: є мобільний зв'язок
Під'їзд: кодовий замок
Меблі: є, але можуть бути прибрані.
Особливості планування: 4 балкони-лоджії + 5 м2 комора/майстерня на поверсі
Ліфт: пасажирський + вантажний ліфт

Автономія

Автономне опалення

(067) 476-52-14

Отримати консультацію

(067) 476-52-14