Майбутнє має адресу
21500 у.о. |
|||
|---|---|---|---|
| ID | 155689 | ||
| Розташування | Балківська вул., Суворовський | ||
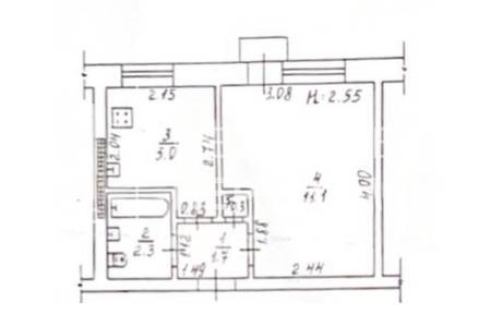
| Загальна, кв.м. | 21.00 | ||
| Жила/Кухня, кв.м. | 11.00/5.00 | ||
| Поверх | 7 /9 | ||
| Висота стелі, м. | 2.60 | ||
| Стан нерухомості | з ремонтом | ||
| Опалення | центральне | ||
У продажу 1-кімнатна квартира в районі Приморського суду (Дюківські лазні). Загальна площа 21 м ², кімната 11 м ², кухня 5 м ². Розташована на 7-му поверсі 9-ти поверхового цегляного будинку. У квартирі зроблений свіжий ремонт, встановлені нові меблі та техніка, вся сантехніка, крани та змішувачі нові. Все лишається. Квартира світла та тепла. У радіусі 100 метрів вся необхідна інфраструктура: аптеки, кафе, супермаркети, міні ринок. Біля будинку зупинка громадського транспорту до будь-якої точки міста. У будинку є новий ліфт, електронний замок.
Відмінний варіант для життя та здачі в оренду. Готова до заселення.
Телефонуйте для перегляду.
Автономне опалення
Отримати консультацію