Майбутнє має адресу
35000 у.о. |
|||
|---|---|---|---|
| Подивитися детальну інформацію про ЖК Акварель-3 | |||
| ID | 155682 | ||
| Розташування | Ковалевського узвіз, Приморський | ||
| Загальна, кв.м. | 36.00 | ||
| Жила/Кухня, кв.м. | 12.00/18.00 | ||
| Поверх | 17 /17 | ||
| Висота стелі, м. | 2.80 | ||
| Стан нерухомості | від будівельників | ||
| Опалення | дахова котельня | ||
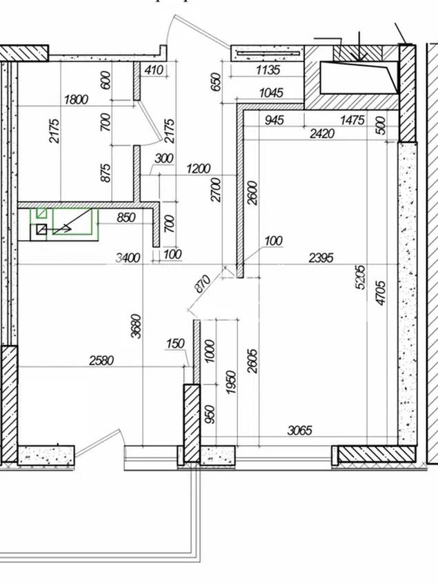
Однокімнатна квартира в житловому комплексі Акварель-3 у центрі Одеси. Розташування за адресою Узвіз Ковалевського, 7 у зданій секції.
— Вільне планування для реалізації дизайнерських рішень
— Можливість отримання ключів та початку ремонтних робіт
- Панорамне скління з видом на місто
— Вигідне розташування в історичному центрі
Особливі умови:
— Відступлення прав вимоги за договором із забудовником
— Доступні відеоогляд квартири та детальні планувальні рішення
- Гнучкі умови обговорення ціни
— Перспектива як для особистого проживання, так і для інвестицій в оренду
Унікальна можливість придбати нерухомість у престижному житловому комплексі у центральній частині Одеси.
Телефонуйте, записуйтесь на перегляд!
Генератор
Аварійне освітлення
Автономне опалення
Безперебійна робота ліфтів
Отримати консультацію