a

Майбутнє має адресу

1-кімнатна квартира, 42.00 кв.м.

76000 у.о.

Подивитися детальну інформацію про ЖК 66 Перлина
ID 155521
Розташування Краснова вул., Малиновський
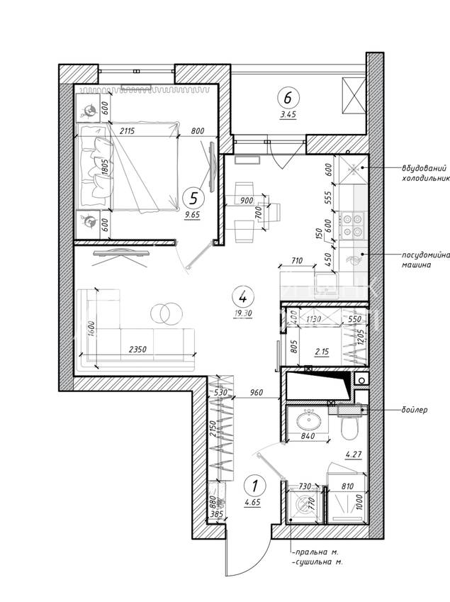
Загальна, кв.м. 42.00
Жила/Кухня, кв.м. 12.00/19.00
Поверх 19 /24
Висота стелі, м. 3.00
Стан нерухомості з ремонтом
Опалення дахова котельня

KADORR city

У продаж однокімнатна квартира в ЖК 66 Перлина, вул. Краснова.

Площа 42 м², поверх 19 із 24.

Квартира з повною комплектацією: меблі, побутова техніка.

Планування: кухня-вітальня та окрема спальня.

Є балкон.

Вид на іподром і море.

Будинок зданий та заселений.

Відмінний варіант для проживання чи оренди.

Телефонуйте для перегляду.

Автономія

Генератор

Аварійне освітлення

Автономне опалення

Безперебійна робота ліфтів

Бомбосховище

Безпека

Закрита територія

Територія, що охороняється

Відеоспостереження

(067) 522-58-95

Отримати консультацію

(067) 522-58-95