a

Майбутнє має адресу

1-кімнатна квартира, 75.00 кв.м.

189000 у.о.

Подивитися детальну інформацію про ЖК Kandinsky
ID 155072
Розташування Французький бульв., Приморський
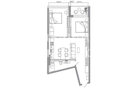
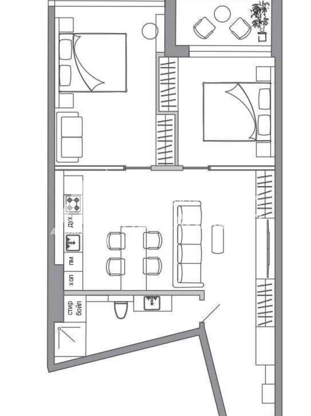
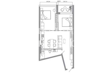
Загальна, кв.м. 75.00
Жила/Кухня, кв.м. 46.50/28.50
Поверх 9 /21
Висота стелі, м. 2.90
Стан нерухомості від будівельників
Опалення дахова котельня

Продається простора квартира 75 м² із вільним плануванням у преміальному ЖК «Кандинський» на Французькому бульварі. Квартира розташована на середніх поверхах (9 поверх) з терасою та панорамним видом на море. Будинок уже зданий в експлуатацію.

Ключові переваги:

  • Вільне планування для реалізації будь-яких дизайнерських рішень

  • Простора тераса з видом на море

  • Бізнес-клас з концепцією міста в місті

  • Прямий підземний перехід до моря

  • Величезний підземний паркінг

Інфраструктура у кроковій доступності (до 500 м):

  • ТРЦ, супермаркети, ресторани та кафе

  • Театри, кінотеатр, парки та дитячі майданчики

  • Медичні установи, банки, відділення пошти

  • Зупинки громадського транспорту

Унікальні особливості ЖК:

  • Розташування на морській стороні Французького бульвару

  • Розвинена інфраструктура на території комплексу

  • Зручний спуск до моря через підземний тунель

  • Ідеально підходить для постійного проживання та літнього відпочинку

Преміальне житло у найкращій локації Одеси з панорамними видами на море та парк.

Телефонуйте, записуйтесь на перегляд

(067) 522-58-95

Отримати консультацію

(067) 522-58-95