Майбутнє має адресу
40000 у.о. |
|||
|---|---|---|---|
| Подивитися детальну інформацію про ЖК DERBY STYLE HOUSE | |||
| ID | 155010 | ||
| Розташування | Фонтанська дорога вул., Приморський | ||
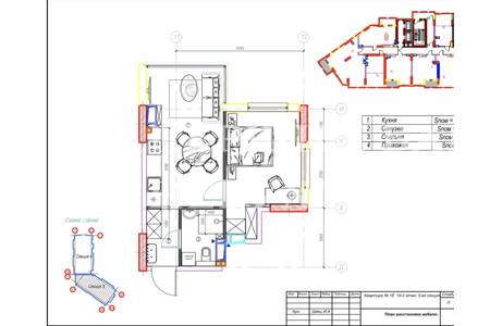
| Загальна, кв.м. | 37.21 | ||
| Жила/Кухня, кв.м. | 15.00/12.00 | ||
| Поверх | 9 /24 | ||
| Висота стелі, м. | 2.75 | ||
| Стан нерухомості | від будівельників | ||
| Опалення | дахова котельня | ||
У продажу 1-кімнатна квартира в ЖК Дербі на 4 ст. Великого Фонтану. Загальна площа 37,21 кв. Квартира розташована на середньому 9 поверсі. Вікна дивляться на парк і частково надвір. Дуже зручна транспортна розв'язка (тролейбус, трамвай, маршрутне таксі) поруч море, парк Перемоги, Аркадія. 10 хвилин залізничного вокзалу. У пішій доступності понад 4 університети, школи, садки, Юридична академія. Ремонт можна розпочинати робити вже зараз. Переуступка. Телефонуйте!
Автономне опалення
Бомбосховище
Закрита територія
Територія, що охороняється
Отримати консультацію