Майбутнє має адресу
68500 у.о. |
|||
|---|---|---|---|
| ID | 153895 | ||
| Розташування | Питомий пров., Приморський | ||
| Загальна, кв.м. | 65.60 | ||
| Жила/Кухня, кв.м. | 35.00/14.00 | ||
| Поверх | 4 /14 | ||
| Висота стелі, м. | 3.00 | ||
| Стан нерухомості | від будівельників | ||
| Опалення | дахова котельня | ||
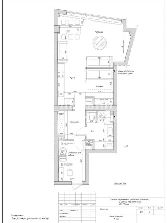
Простора 2-кімнатна квартира з видом на море у ЖК «Париж», Французький бульвар
Продається стильна квартира в одному з найпрестижніших житлових комплексів Одеси – ЖК «Париж», на Французькому бульварі.
Загальна площа - 65,6 м ², розташована на низькому, зручному 4 поверсі.
Планується у дві ізольовані спальні та простору кухню-вітальню з високою стелею та ефектом другого світла. Також можливе перепланування у формат з однією спальнею – підійде як для сім'ї, так і для індивідуального проживання.
Дизайн-проект
З вікон відкривається захоплюючий вид на море, що створює атмосферу затишку та натхнення. Квартира дуже світла, простора і з приголомшливою енергетикою.
Ідеальна пропозиція для тих, хто шукає комфорт та красу в одному з найкращих районів міста!
Телефонуйте!
Отримати консультацію