a

Майбутнє має адресу

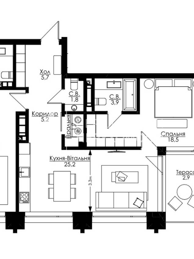
2-кімнатна квартира, 92.50 кв.м.

276113 у.о.

Подивитися детальну інформацію про Комплекс апартаментів DOMA TRABOTTI
ID 153775
Розташування Doma Trabotti, Приморський
Загальна, кв.м. 92.50
Жила/Кухня, кв.м. 40.00/25.00
Поверх 12 /16
Висота стелі, м. 3.00
Стан нерухомості від будівельників
Опалення дахова котельня

Doma Trabotti – це преміальний комплекс в одній із найкращих локацій Одеси. З одного боку від комплексу – море, з іншого – зелені зони. Поєднання близькості до центру та конфіденційності робить цей комплекс універсальним та максимально продуманим.

Прибудинкова територія включає паркові алеї для прогулянок, дитячі майданчики та спортивні зони. Автономна інфраструктура дозволить майбутнім мешканцям сходити в магазин за продуктами, випити філіжанку кави або влаштувати шопінг, не виходячи за межі комплексу. Крім того, проектом передбачено власне СПА, басейн та зони релаксу.

Комплекс знаходиться у районі Аркадії, на Французькому бульварі. В окрузі – приватні котеджі, нові житлові комплекси, парки, пляжі та необхідні громадські заклади. За 15 хвилин авто можна доїхати до центру міста, за 20 хвилин – до міжнародного аеропорту.

Тривала розстрочка!
Індивідуальні умови!

Автономія

Генератор

Аварійне освітлення

Автономне опалення

Безперебійна робота ліфтів

Бомбосховище

Безпека

Закрита територія

Територія, що охороняється

Відеоспостереження

Домофон

(067) 522-58-95

Отримати консультацію

(067) 522-58-95