Майбутнє має адресу
128000 у.о. |
|||
|---|---|---|---|
| ID | 153440 | ||
| Розташування | Троїцька вул., Приморський | ||
| Загальна, кв.м. | 121.00 | ||
| Жила/Кухня, кв.м. | 70.00/14.00 | ||
| Поверх | 2 /2 | ||
| Висота стелі, м. | 3.20 | ||
| Стан нерухомості | під ремонт | ||
| Опалення | центральне | ||
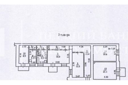
Продається квартира в історичному центрі міста!
Адреса: вул. Троїцька, фасадний будинок.
Поверх: 2-й з 2-х
Площа: 121 кв.м
Простора квартира під ремонт в одному із найпрестижніших районів міста. Будівля з мармуровими парадними сходами, всього дві квартири на поверсі, що забезпечує тишу та приватність.
Квартира займає весь фасадний блок другого поверху: два великі вікна та балкон виходять на вулицю Троїцьку, решта вікон та другий балкон - у внутрішній тихий двір.
Ідеально підійде як для комфортного проживання, так і для використання з комерційною метою: офіс, стоматологія, юридична фірма та інші види діяльності.
Відмінне планування.
Історичний фасад.
Затишний двір.
Престижне сусідство.
Телефонуйте!
.
Отримати консультацію