a

Майбутнє має адресу

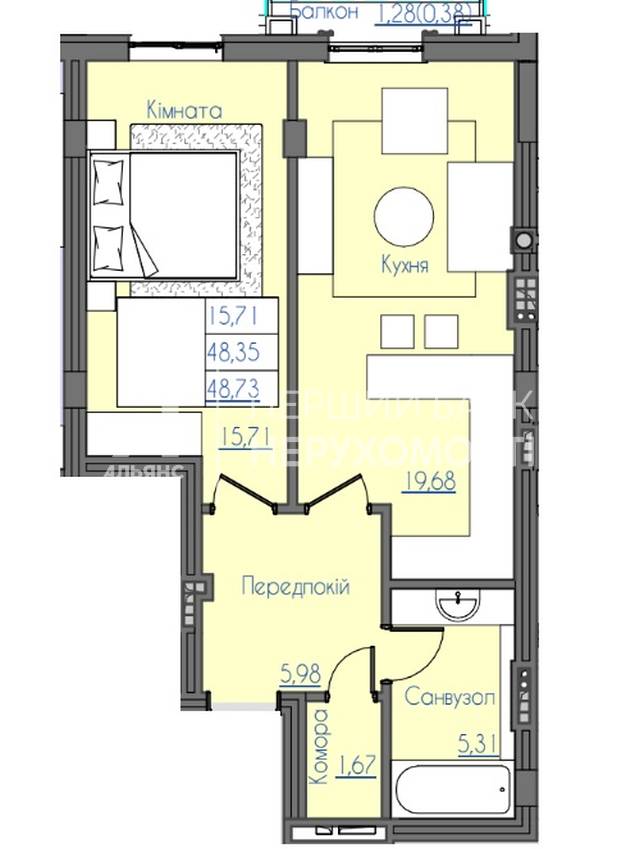
1-кімнатна квартира, 48.77 кв.м.

115000 у.о.

Подивитися детальну інформацію про Клубний дім Консул
ID 153258
Розташування Фонтанська дорога вул., Київський
Загальна, кв.м. 48.77
Жила/Кухня, кв.м. 18.50/12.30
Поверх 3 /7
Висота стелі, м. 3.00
Стан нерухомості від будівельників
Опалення АОГВ

Продам 1-кімнатну квартиру в будинку еліт класу на Фонтанській дорозі, ЖК Консул.
Будинок зданий! Море в пішій доступності, 5 хв.
на 10 станції Великого Фонтану
3 поверх
Площа: 48,77 м2.
Малоквартирний будинок.
Газові плити та опалення.
Власний басейн із підігрівом. Підземний паркінг. Безшумні швидкісні ліфти KONE.

Телефонуйте! Чекаємо на вас на перегляд!
 

Автономія

Генератор

Аварійне освітлення

Автономне опалення

Безперебійна робота ліфтів

Бомбосховище

Безпека

Закрита територія

Територія, що охороняється

Відеоспостереження

Домофон

(067) 476-52-14

Отримати консультацію

(067) 476-52-14