Майбутнє має адресу
99000 у.о. |
|||
|---|---|---|---|
| ID | 153024 | ||
| Розташування | Глушка Академіка просп. (Князя Ярослава Мудрого пр.), Київський | ||
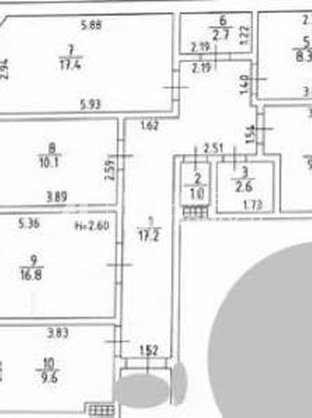
| Загальна, кв.м. | 99.00 | ||
| Жила/Кухня, кв.м. | 61.90/16.80 | ||
| Поверх | 2 /9 | ||
| Висота стелі, м. | 2.90 | ||
| Стан нерухомості | з ремонтом | ||
| Опалення | АОГВ | ||
Продається простора 5-кімнатна квартира у відмінному районі, загальною площею 99 м² зі зручним плануванням. У ній п'ять ізольованих кімнат, простора кухня та окремий санвузол. Завдяки автономному опаленню із двоконтурним котлом, ви самі регулюєте комфортний мікроклімат у будь-яку пору року.
Квартира розташована в розвиненому районі, де є все для комфортного життя: школи, дитячі садки, ринок, магазини, зручна транспортна розв'язка та зелені зони для відпочинку.
Цей варіант ідеально підійде для сім'ї, яка цінує простір. Квартира готова до заселення – дзвоніть та приходьте на перегляд!
Отримати консультацію