Майбутнє має адресу
115000 у.о. |
|||
|---|---|---|---|
| Подивитися детальну інформацію про ЖК AQUA MARINE | |||
| ID | 151502 | ||
| Розташування | Фонтанська дорога вул., Київський | ||
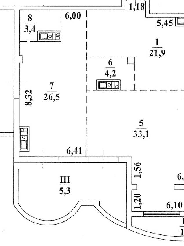
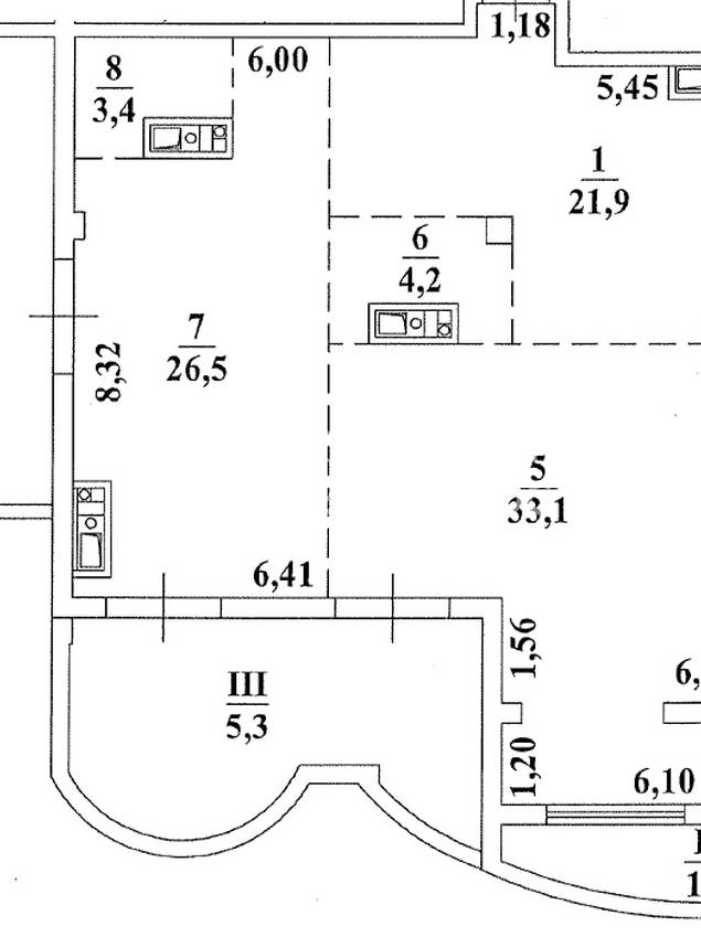
| Загальна, кв.м. | 160.50 | ||
| Жила/Кухня, кв.м. | 75.00/33.10 | ||
| Поверх | 22 /23 | ||
| Висота стелі, м. | 3.00 | ||
| Стан нерухомості | від будівельників | ||
| Опалення | дахова котельня | ||
Прекрасна 3-х кімнатна квартира з террасою 75метрів і кухнею 33м з видом на море в ЖК Аквамарин на 16 Фонтану.
Продаж квартири в ЖК "Аквамарин" в Одесі
Продається сучасна квартира в житловому комплексі "Аквамарин" в Одесі. Це ідеальний вибір для тих, хто шукає комфортне та стильне житло в одному з найпривабливіших районів міста.
Опис ЖК "Аквамарин":
- Розташування: Комплекс знаходиться у престижному районі Одеси, з відмінною транспортною доступністю та близькістю до морського узбережжя. У кроковій доступності школи, дитячі садки, магазини, кафе, ресторани та зони відпочинку.
- Архітектура: Сучасний дизайн, продумані планування та високоякісні матеріали будівництва. Комплекс включає кілька житлових будівель різної поверховості.
- Інфраструктура: На території ЖК розташовані спортивні та дитячі майданчики, зони для відпочинку, підземний паркінг, а також комерційні приміщення для вашої зручності.
- Безпека
Генератор
Аварійне освітлення
Автономне опалення
Безперебійна робота ліфтів
Отримати консультацію