a

Майбутнє має адресу

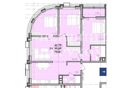
4-кімнатна квартира, 99.00 кв.м.

185000 у.о.

Подивитися детальну інформацію про ЖК MODERN
ID 151048
Розташування Франка Івана вул., Київський
Загальна, кв.м. 99.00
Жила/Кухня, кв.м. 62.00/25.00
Поверх 23 /24
Висота стелі, м. 3.00
Стан нерухомості від будівельників
Опалення дахова котельня

Продам квартиру 100 кв.м на 23 поверсі в ЖК Модерн, вул. Івана Франка, 40. Будинок зданий у 2023 році, на наявність документів власності. Стан від будівельників.

Видова квартира в найефектнішому будинку на Фонтані дивиться на південний захід, а отже тут завжди будуть чудові заходи сонця і дуже тепло в будь-яку пору року. Вдень ви зможете милуватися Одесою від краю до краю (краєм праворуч і ліворуч видно море). Увечері небо заллється різнобарвним промінням крізь хмари і чудовий захід сонця розфарбує ваш інтер'єр по-новому. Щодня по-новому. І головне, що ніхто ніколи не перекриє цей вид новою забудовою.

У квартирі 3 спальні (майстер-спальня з санвузлом та великим заскленим балконом, 2 дитячі або 1 дитяча та кабінет), велика вітальня та кухня загальною площею 38 кв.м, сан вузол, вбиральня.

Квартира продається разом з коморою на -1 поверсі площею 10 м.кв. Тут поміститься все: літня/зимова гума, новорічні іграшки з ялинкою і навіть диван з морозильною камерою для особливого випадку.

Також у наявності підземний паркінг на 2 паркомісця у другій черзі (готовність у 2025 році). Ціна договірна.

Будинок знаходиться в жвавому бізнес-районі на 6-му фонтані, при цьому трохи далі від галасливих доріг, ближче до приватного сектору. Вікна із квартири виходять на тихий бік лікарні Водників та приватний сектор.

Двір у житловому комплексі є закритою територією, вже облагороджений та частково озеленений.

Автономія

Генератор

Аварійне освітлення

Автономне опалення

Безперебійна робота ліфтів

Бомбосховище

Безперебійне водопостачання

Безпека

Закрита територія

Територія, що охороняється

Відеоспостереження

(067) 522-58-95

Отримати консультацію

(067) 522-58-95