Майбутнє має адресу
33000 у.о. |
|||
|---|---|---|---|
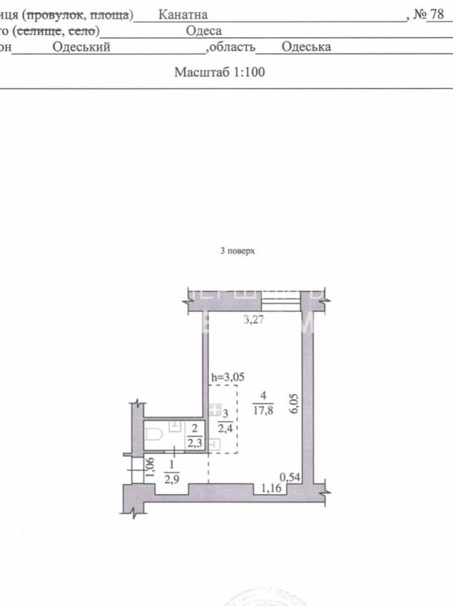
| ID | 151001 | ||
| Розташування | Канатна вул., Приморський | ||
| Загальна, кв.м. | 27.00 | ||
| Жила/Кухня, кв.м. | 10.00/10.00 | ||
| Поверх | 3 /3 | ||
| Висота стелі, м. | 3.00 | ||
| Стан нерухомості | з ремонтом | ||
| Опалення | електро | ||
У продажу смарт квартира в центрі Одеси з ремонтом на Канатній / Італійський бульвар.
Готовий бізнес під здачу.
Отримати консультацію