Майбутнє має адресу
49900 у.о. |
|||
|---|---|---|---|
| Подивитися детальну інформацію про ЖК Таїровські сади | |||
| ID | 150746 | ||
| Розташування | Вільямса Академіка вул. (Євгена Чикаленка вул.), Овідіопольський | ||
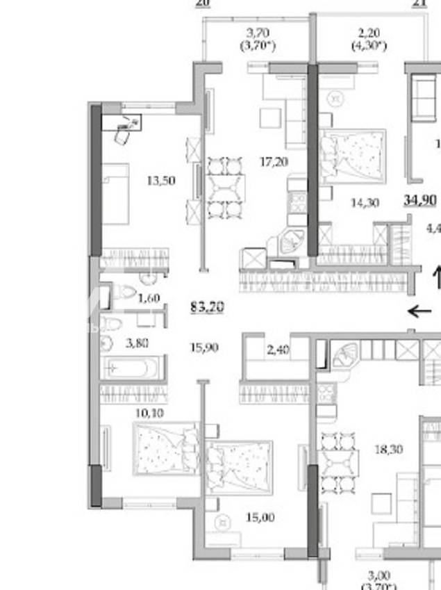
| Загальна, кв.м. | 83.20 | ||
| Жила/Кухня, кв.м. | 38.60/17.20 | ||
| Поверх | 3 /17 | ||
| Висота стелі, м. | 2.90 | ||
| Стан нерухомості | від будівельників | ||
| Опалення | дахова котельня | ||
ЖМ Таїровські сади, у продажу квартира у 3 черги будівництва.
Простора 3-кімн., загальною площею 83,2 квадратних метра з видом на гарний, зелений двір, двостороння.
Комфортний 3 поверх, вдале планування - кухня-студія та 3 окремі кімнати, панорамне скління, лоджії, панорамне скління, великий передпокій.
Продаж по переуступці.
Комплекс на етапі будівництва.
Генератор
Аварійне освітлення
Автономне опалення
Бомбосховище
Територія, що охороняється
Отримати консультацію