a

Майбутнє має адресу

2-кімнатна квартира, 62.00 кв.м.

64700 у.о.

Подивитися детальну інформацію про Клубний дім Будинок на Тульській
ID 150299
Розташування Тульська вул., Київський
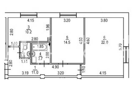
Загальна, кв.м. 62.00
Жила/Кухня, кв.м. 36.50/9.90
Поверх 4 /4
Висота стелі, м. 4.00
Стан нерухомості від будівельників
Опалення АОГВ

єОселя

Новий малоповерховий будинок на Таїрова - р-н Вузівської Таврії.
вул. Тульська/Вернадського у тиші приватного сектора.

Закрита територія дуже зручне розташування.
Розвинена інфраструктура – поруч парк, школи, дитячі садки, ринок, зупинки транспорту.

Усього 4 поверхи, по 4 квартири на кожному поверсі, індивідуальне опалення, газ.
Котел АОГВ встановлюється самостійно покупцем.

Площа – 62м.
Поверх - 4 з 4 - мансардний, стелі 4м.
Стан квартири – від будівельників, встановлені перестінки (можна зробити будь-яке перепланування), броньовані двері Саган.
Без стяжки підлоги.
Додатково є можливість замовити 3 види обробки/ремонту від забудовника.

Будинок введений в експлуатацію - підходить під усі держпрограми іпотеки/кредитування - єОселя, постанови.

ТЕЛЕФОНУЙТЕ І ЗАПИСУЙТЕСЯ НА ПЕРЕГЛЯД!!!

Автономія

Генератор

Аварійне освітлення

Автономне опалення

Безпека

Відеоспостереження

Домофон

(067) 476-52-14

Отримати консультацію

(067) 476-52-14