a

Майбутнє має адресу

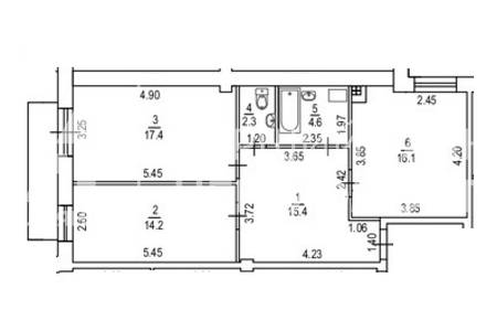
2-кімнатна квартира, 71.40 кв.м.

78900 у.о.

Подивитися детальну інформацію про Клубний дім Будинок на Тульській
ID 150293
Розташування Тульська вул., Київський
Загальна, кв.м. 71.40
Жила/Кухня, кв.м. 35.90/14.40
Поверх 2 /4
Висота стелі, м. 3.00
Стан нерухомості з ремонтом
Опалення АОГВ

єОселя

Новий малоповерховий будинок на Таїрова - р-н Вузівської Таврії.
вул. Тульська/Вернадського у тиші приватного сектора.

Закрита територія дуже зручне розташування.
Розвинена інфраструктура – поруч парк, школи, дитячі садки, ринок, зупинки транспорту.

Усього 4 поверхи, по 4 квартири на кожному поверсі, індивідуальне опалення, газ.
Котел АОГВ встановлюється самостійно покупцем.

Площа – 71,4м.

Простора кухня, 2 окремі кімнати, роздільна с\у.
Поверх - 2 з 4
Стан квартири – з ремонтом, броньовані двері Саган.

Будинок введений в експлуатацію - підходить під усі держпрограми іпотеки/кредитування - єОселя, постанови.

ТЕЛЕФОНУЙТЕ І ЗАПИСУЙТЕСЯ НА ПЕРЕГЛЯД!!!

Автономія

Генератор

Аварійне освітлення

Автономне опалення

Безпека

Відеоспостереження

Домофон

(067) 569-46-14

Отримати консультацію

(067) 569-46-14