a

Майбутнє має адресу

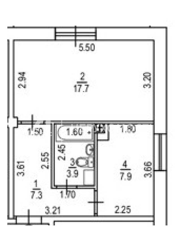
1-кімнатна квартира, 36.80 кв.м.

57400 у.о.

Подивитися детальну інформацію про Клубний дім Будинок на Тульській
ID 150277
Розташування Тульська вул., Київський
Загальна, кв.м. 36.80
Жила/Кухня, кв.м. 17.70/7.90
Поверх 4 /4
Висота стелі, м. 4.00
Стан нерухомості з ремонтом
Опалення АОГВ

єОселя

Новий малоповерховий будинок на Таїрова - р-н Вузівської Таврії.
вул. Тульська/Вернадського у тиші приватного сектора.

Закрита територія дуже зручне розташування.
Розвинена інфраструктура – поруч парк, школи, дитячі садки, ринок, зупинки транспорту.

Усього 4 поверхи, по 4 квартири на кожному поверсі, індивідуальне опалення, газ.
Котел АОГВ встановлюється самостійно покупцем.

Площа – 36,8м.кв.
Поверх - 4 із 4 - мансардний.
Стан квартири – з ремонтом

Будинок введений в експлуатацію - підходить під усі держпрограми іпотеки/кредитування - єОселя, постанови.

ТЕЛЕФОНУЙТЕ І ЗАПИСУЙТЕСЯ НА ПЕРЕГЛЯД!!!

Автономія

Генератор

Аварійне освітлення

Автономне опалення

Безпека

Відеоспостереження

Домофон

(067) 569-46-14

Отримати консультацію

(067) 569-46-14