a

Майбутнє має адресу

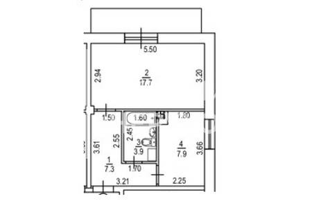
1-кімнатна квартира, 38.70 кв.м.

61200 у.о.

Подивитися детальну інформацію про Клубний дім Будинок на Тульській
ID 150274
Розташування Тульська вул., Київський
Загальна, кв.м. 38.70
Жила/Кухня, кв.м. 17.70/7.90
Поверх 2 /4
Висота стелі, м. 3.00
Стан нерухомості з ремонтом
Опалення АОГВ

єОселя

Новий малоповерховий будинок на Таїрова - р-н Вузівської Таврії.
вул. Тульська/Вернадського у тиші приватного сектора.

Закрита територія дуже зручне розташування.
Розвинена інфраструктура – поруч парк, школи, дитячі садки, ринок, зупинки транспорту.

Усього 4 поверхи, по 4 квартири на кожному поверсі, індивідуальне опалення, газ.
Котел АОГВ встановлюється самостійно покупцем.

Площа – 38,7м.кв. Кухня та простора кімната.
Поверх - 2 з 4
Стан квартири – з ремонтом, встановлені перестінки (можна зробити будь-яке перепланування), броньовані двері Саган.

Будинок введений в експлуатацію - підходить під усі держпрограми іпотеки/кредитування - єОселя, постанови.

ТЕЛЕФОНУЙТЕ І ЗАПИСУЙТЕСЯ НА ПЕРЕГЛЯД!!

Автономія

Генератор

Аварійне освітлення

Автономне опалення

Безпека

Відеоспостереження

Домофон

(067) 569-46-14

Отримати консультацію

(067) 569-46-14