a

Майбутнє має адресу

1-кімнатна квартира, 37.70 кв.м.

37100 у.о.

Подивитися детальну інформацію про Клубний дім Будинок на Тульській
ID 150272
Розташування Тульська вул., Київський
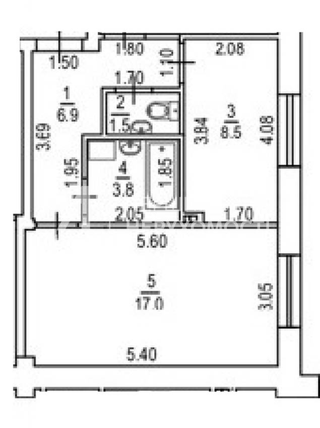
Загальна, кв.м. 37.70
Жила/Кухня, кв.м. 16.10/10.40
Поверх 1 /4
Висота стелі, м. 3.00
Стан нерухомості від будівельників
Опалення АОГВ

єОселя

Новий малоповерховий будинок на Таїрова - р-н Вузівської Таврії.
вул. Тульська/Вернадського у тиші приватного сектора.

Закрита територія дуже зручне розташування.
Розвинена інфраструктура – поруч парк, школи, дитячі садки, ринок, зупинки транспорту.

Усього 4 поверхи, по 4 квартири на кожному поверсі, індивідуальне опалення, газ.
Котел АОГВ встановлюється самостійно покупцем.

Площа – 37,7 м
Поверх - 1
Стан квартири - в процесі ремонту - ціна при закінченні буде вищою

Будинок введений в експлуатацію - підходить під усі держпрограми іпотеки/кредитування - єОселя, постанови.

ТЕЛЕФОНУЙТЕ І ЗАПИСУЙТЕСЯ НА ПЕРЕГЛЯД!!!

Автономія

Генератор

Аварійне освітлення

Автономне опалення

Безпека

Відеоспостереження

Домофон

(067) 569-46-14

Отримати консультацію

(067) 569-46-14