Майбутнє має адресу
35000 у.о. |
|||
|---|---|---|---|
| ID | 149736 | ||
| Розташування | Академічна вул. (Купріна вул.), Приморський | ||
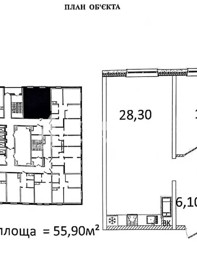
| Загальна, кв.м. | 55.90 | ||
| Жила/Кухня, кв.м. | 28.30/15.30 | ||
| Поверх | 7 /25 | ||
| Висота стелі, м. | 3.00 | ||
| Стан нерухомості | від будівельників | ||
| Опалення | дахова котельня | ||
У продажу квартира в новому апарт-комплексі в Аркадії - "Морська резиденція". Квартира розташована у 1й секції. Вільне планування: можна зробити дві кімнати та кухню.
Закрита територія, що охороняється. Неподалік розташований готельний комплекс Maristellа з фітнес-центром, яхт-клуб та літні нічні клуби. Пляжі поряд – історичний Чкаловський пляж, пляж «Калетон», "Аркадія".
Власний багаторівневий паркінг та гостьова парковка для всіх відвідувачів комплексу.
Отримати консультацію