Майбутнє має адресу
130000 у.о. |
|||
|---|---|---|---|
| Подивитися детальну інформацію про ЖК GreenWood | |||
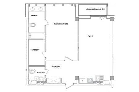
| ID | 148630 | ||
| Розташування | Французький бульв., Приморський | ||
| Загальна, кв.м. | 74.00 | ||
| Жила/Кухня, кв.м. | 20.00/27.00 | ||
| Поверх | 8 /17 | ||
| Висота стелі, м. | 3.00 | ||
| Стан нерухомості | від будівельників | ||
| Опалення | дахова котельня | ||
Хочете жити на Французькому бульварі в елітному комплексі?! найкраща цінова пропозиція!
Вид на море саме з цієї квартири - і Ви матимете можливість щоранку зустрічати схід сонця, з чашкою кави на власному балконі!
Квартира 72 кв.м. в ЖК Грінвуд. Планується в 1 або 2 спальні та кухню-студію. Прекрасний вид на море. з вікон та з балкона.
ЖК Грінвуд сьогодні. -найзатребуваніший з зданих будинків на Французькому бульварі. Будинок заселений, все функціонує, охорона, автономія, запас води на 50 тонн, генератор. У будинку розкішний спа-центр, влітку відкривається власний басейн! Відмінний варіант як для власного проживання, так і для бізнесу!
Генератор
Аварійне освітлення
Автономне опалення
Безперебійна робота ліфтів
Бомбосховище
Закрита територія
Територія, що охороняється
Отримати консультацію