a

Майбутнє має адресу

4-кімнатна квартира, 230.00 кв.м.

295000 у.о.

Подивитися детальну інформацію про ЖК Новий берег
ID 148042
Розташування Новоберегова вул., Приморський
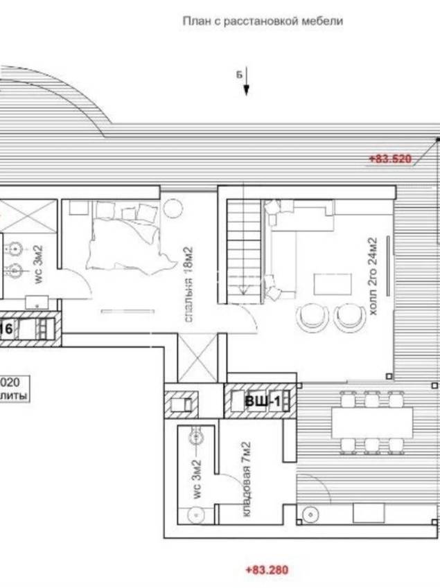
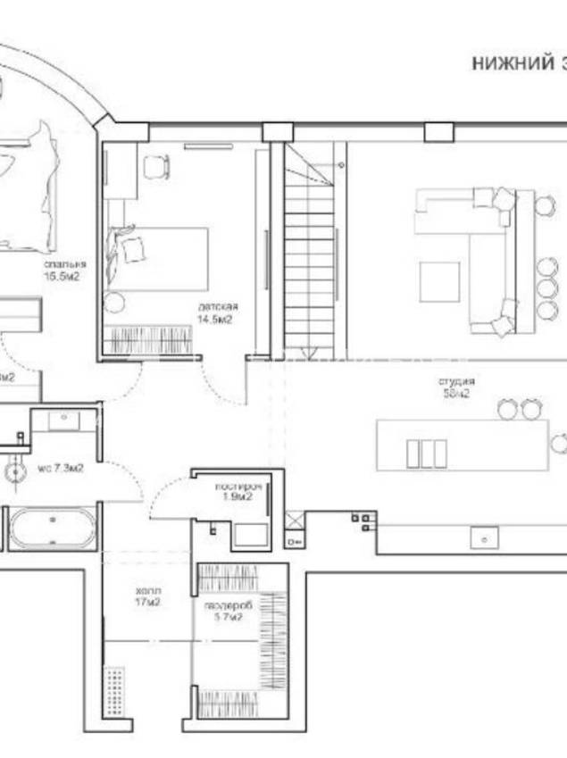
Загальна, кв.м. 230.00
Жила/Кухня, кв.м. 184.00/99.00
Поверх 26 /27
Висота стелі, м. 3.00
Стан нерухомості від будівельників
Опалення дахова котельня

У продажу просторий дворівневий пентхаус із терасою.

Розташування: 8 ст. Б. Фонтану, елітний приморський район. Морський пляж о 10 хв пішки, парк Юність о 5 хв пішки.

Інфраструктура: супермаркет, школа раннього розвитку, салони краси та ін.

Комплекс: велика упорядкована територія, підземний та гостьовий паркінг, презентабельні місця загального користування

 

Автономія

Генератор

Аварійне освітлення

Автономне опалення

Безперебійна робота ліфтів

Бомбосховище

Безпека

Закрита територія

Територія, що охороняється

Відеоспостереження

(067) 522-58-95

Отримати консультацію

(067) 522-58-95