Майбутнє має адресу
150000 у.о. |
|||
|---|---|---|---|
| Подивитися детальну інформацію про ЖК Чотири сезони | |||
| ID | 147945 | ||
| Розташування | Гагаріна просп. (Лесі Українки прос.), Приморський | ||
| Загальна, кв.м. | 103.00 | ||
| Жила/Кухня, кв.м. | 60.00/37.00 | ||
| Поверх | 20 /25 | ||
| Висота стелі, м. | 3.00 | ||
| Стан нерухомості | під ремонт | ||
| Опалення | дахова котельня | ||
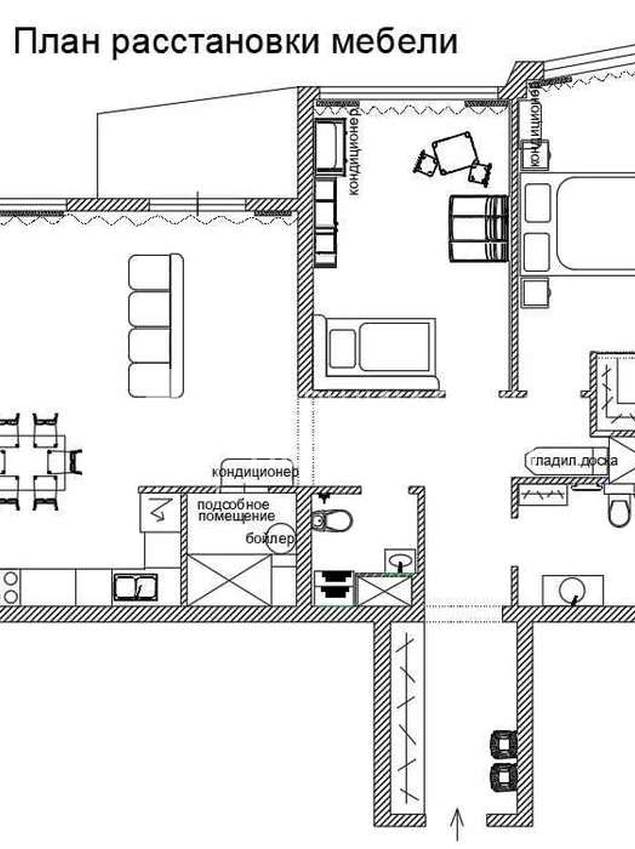
У продажу 3 кімн. квартира в ЖК "4 Сезони", 103 м.кв., проспект Гагаріна / проспект Шевченка! У квартирі є панорамне скління, балкон засклений. Квартира простора та світла. Вікна виходять на південний захід, у квартирі тепло та сонячно. Стан квартири - під чистове оздоблення. Ремонт виконувався за дизайн-проектом. У квартирі 2 спальні (збільшені), гардероб, кухня-студія, підсобне приміщення, куди винесено бойлер, 2 санвузли. Проведено всю електрику, розведення сантехніки, висновки під аквасторож, висновки під кондиціонер у кожну кімнату, висновки під теплі підлоги (коридор, 2 санвузли, зона кухні), інтернет, сигналізацію, домофон. У всіх кімнатах збільшено радіатори. Віконні отвори утеплені, на стінах звукоізоляція. Встановлено підвіконня. Усі чернові роботи закінчено. Закуплені плитка на санвузли, і зону кухні (іспанія 1.5 м. х 65см), тепла підлога, аквасторож, сушка для рушників. Все залишається у квартирі. Є можливість придбати велику комору – 5 кв.м. поряд з квартирою та паркінг. На території житлового комплексу знаходиться дитячий майданчик, магазини та парковка. У будинку є паркінг, територія, що охороняється. Є вид моря! Телефонуйте!
Генератор
Аварійне освітлення
Автономне опалення
Безперебійна робота ліфтів
Бомбосховище
Закрита територія
Територія, що охороняється
Система "розумний дім"
Отримати консультацію