Майбутнє має адресу
108000 у.о. |
|||
|---|---|---|---|
| Подивитися детальну інформацію про ЖК AQUA MARINE | |||
| ID | 147150 | ||
| Розташування | Фонтанська дорога вул., Київський | ||
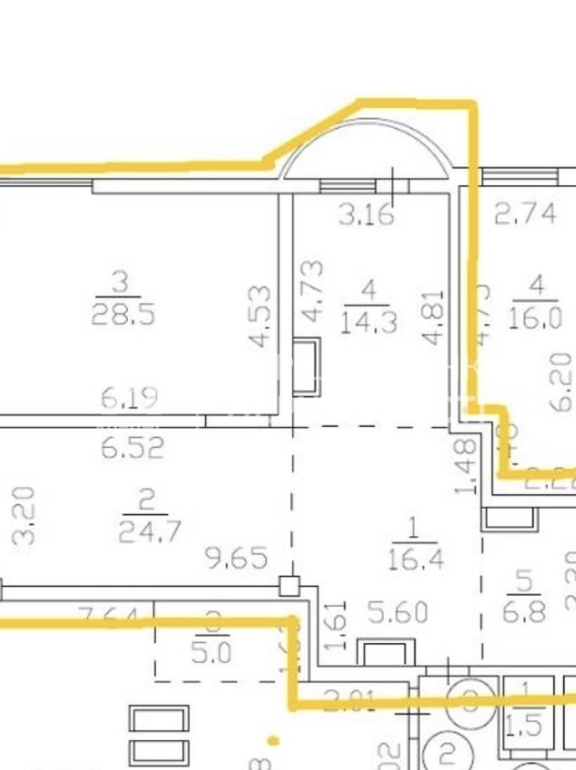
| Загальна, кв.м. | 92.90 | ||
| Жила/Кухня, кв.м. | 28.50/24.70 | ||
| Поверх | 13 /20 | ||
| Висота стелі, м. | 2.70 | ||
| Стан нерухомості | від будівельників | ||
| Опалення | дахова котельня | ||
У продажу 2-кімнатна квартира (16-я станція фонтану)
ВИД НА МОРЕ!
ЖК Aqua Marine
92.9м2
13 поверх
Будинок зданий, стан від будівельників. Квартира видова з панорамними вікнами та гарним видом на море! ідеально підійде для життя та здачі в оренду! Добре розвинена інфраструктура, близькість до моря
переуступка
Оперативний показ!
Генератор
Аварійне освітлення
Автономне опалення
Безперебійна робота ліфтів
Отримати консультацію