Майбутнє має адресу
75000 у.о. |
|||
|---|---|---|---|
| Подивитися детальну інформацію про ЖК DERBY STYLE HOUSE | |||
| ID | 145474 | ||
| Розташування | Фонтанська дорога вул., Приморський | ||
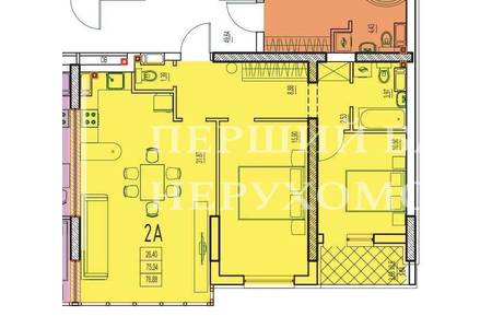
| Загальна, кв.м. | 77.37 | ||
| Жила/Кухня, кв.м. | 26.40/31.87 | ||
| Поверх | 19 /21 | ||
| Висота стелі, м. | 2.80 | ||
| Стан нерухомості | від будівельників | ||
| Опалення | дахова котельня | ||
У продажу двокімнатна квартира в ЖК Derby Stile House, що будується, на 4-й станції Великого Фонтану. Відмінне планування передбачає велику та простору кухню-вітальню понад 30 м2, дві спальні, одна з яких з балконом, два санвузли та передпокій. Квартира Східна. Вікна виходять на іподром.
Комплекс розташований у престижному районі Одеси. До залізничного вокзалу 7 хвилин, до центру Одеси 15 хвилин, до моря 15 хвилин транспортом. Розвинена інфраструктура. Відмінне місце для життя! Здача будинку ймовірно на початку 2024 року.
Генератор
Безперебійна робота ліфтів
Бомбосховище
Закрита територія
Територія, що охороняється
Отримати консультацію