a

Майбутнє має адресу

1-кімнатна квартира, 54.00 кв.м.

125000 у.о.

Подивитися детальну інформацію про ЖК Kandinsky
ID 145102
Розташування Французький бульв., Приморський
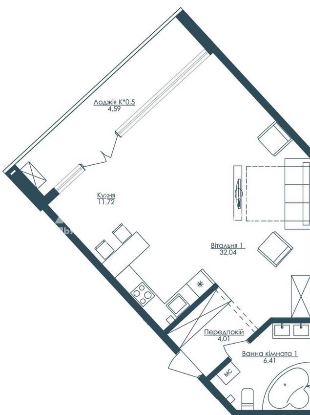
Загальна, кв.м. 54.00
Жила/Кухня, кв.м. 19.00/16.00
Поверх 5 /22
Висота стелі, м. 3.00
Стан нерухомості від будівельників
Опалення дахова котельня

Однокімнатна квартира з терасою біля моря! Найелітніший житловий в Одесі! Французський бульвар!

Вільне планування ... вид на Ботанічний сад ... третій будинок зданий у липні 2021 року ...

У Kandinsky Odessa Residence зосереджено весь спектр міських розваг. Ресторани, кафе, нічні клуби – все це в пішій доступності. Але для того, щоб опинитись у центрі подій, не потрібно залишати житловий комплекс, адже на його території будуть концептуальні заклади з одеським настроєм.

Автономія

Генератор

Аварійне освітлення

Автономне опалення

Безперебійна робота ліфтів

Бомбосховище

Безпека

Закрита територія

Територія, що охороняється

Відеоспостереження

(067) 476-52-14

Отримати консультацію

(067) 476-52-14