a

Майбутнє має адресу

1-кімнатна квартира, 49.64 кв.м.

47902 у.о.

Подивитися детальну інформацію про ЖК Удобний
ID 137700
Розташування ЖК Зручний, Приморський
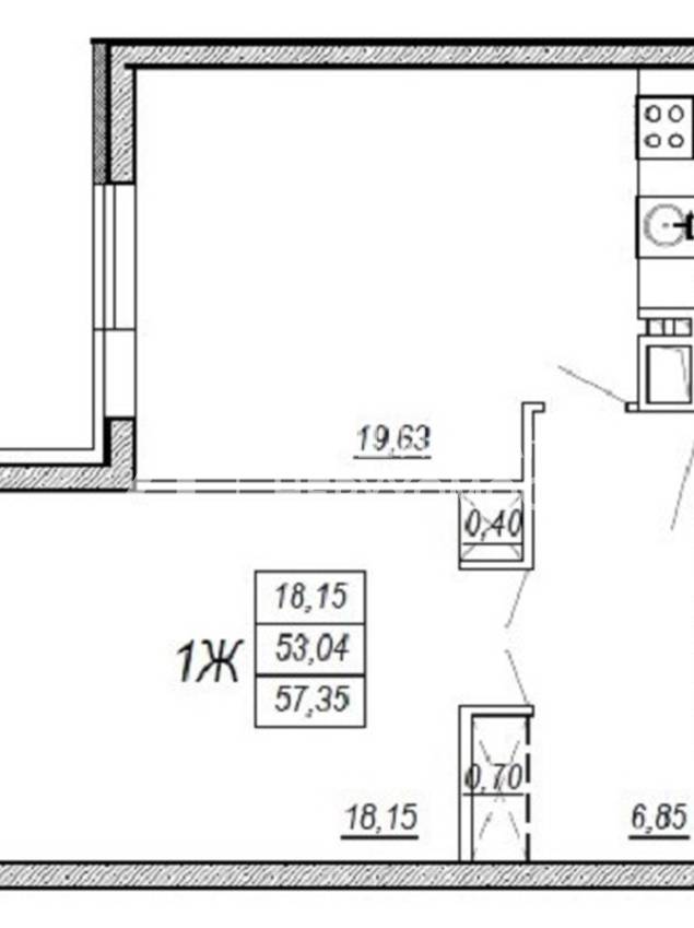
Загальна, кв.м. 49.64
Жила/Кухня, кв.м. 18.15/19.63
Поверх 7 /24
Висота стелі, м. 3.00
Стан нерухомості від будівельників
Опалення дахова котельня

Відеоогляд

ЖК Зручний

Пропонуємо до вашої уваги сучасний житловий комплекс у центрі міста! Купуючи квартиру в ЖК «Зручний» Ви отримуєте сучасний та комфортний рівень життя, розвинену інфраструктуру – транспортну та громадську, закриту територію, що охороняється, сучасну технологічну систему автоматичної безпеки, можливість зручного та доступного розміщення свого транспорту, зону відпочинку, сучасний ландшафтний дизайн прибудинкової території, дитячу та спортивний майданчик. Найцікавіше: покупцю надається зручний індивідуальний графік придбання квартири на виплат.

ТЕЛЕФОНУЙТЕ І ЗАПИСУЙТЕСЯ НА ПЕРЕГЛЯД!!!

Автономія

Генератор

Аварійне освітлення

Автономне опалення

Безперебійна робота ліфтів

Бомбосховище

Безпека

Закрита територія

Територія, що охороняється

Відеоспостереження

Домофон

(067) 476-52-14

Отримати консультацію

(067) 476-52-14